Изображение
  • О компании
  • Услуги и цены
  • Проекты
  • О нашей работе
  • Контакты
Обновить интерьер
Обновить интерьер

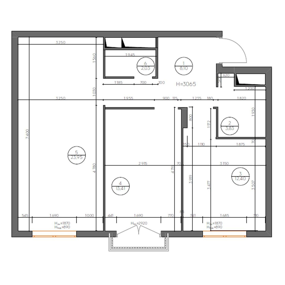
Планировочное решение

Яркая, солнечная квартира, навевающая мысли о море, солнце, песке и лесе.
Изображение
Изображение

Прихожая

Изображение
Изображение
Изображение
Изображение
Изображение

Кухня-гостиная

Прозрачные светильники, зеркальная обеденная зона, яркие цвета и аккуратный принт на полу, делают гостиную воздушной и самобытной.
Изображение
Изображение
Изображение
Изображение
Изображение
Изображение
Изображение
Изображение
Изображение
Изображение

Спальня

Изображение
Изображение
Изображение
Изображение
Изображение
Изображение
Изображение
Изображение
Изображение

Детская

В маленькой детской поместилось все, что нужно ребенку для комфортной жизни: небольшой шкаф, шведская стенка, рабочее место и место для кровати на вырост.
Изображение
Изображение
Изображение
Изображение
Изображение
Изображение
Изображение

Ванная

Солнце, море и песок - такое настроение хотели создать хозяева на 4 квадратных метрах ванной комнаты.
Изображение
Изображение
Изображение
Изображение
Изображение
Изображение

Постирочная

Изображение
Изображение
Изображение
Посмотреть рабочую документацию
Изображение
© ООО "Инсайт"
+7 (985) 528 3334

м. Ботанический сад
Москва, проезд Серебрякова 14, с.15