Изображение
  • О компании
  • Услуги и цены
  • Проекты
  • О нашей работе
  • Контакты
Обновить интерьер
Обновить интерьер

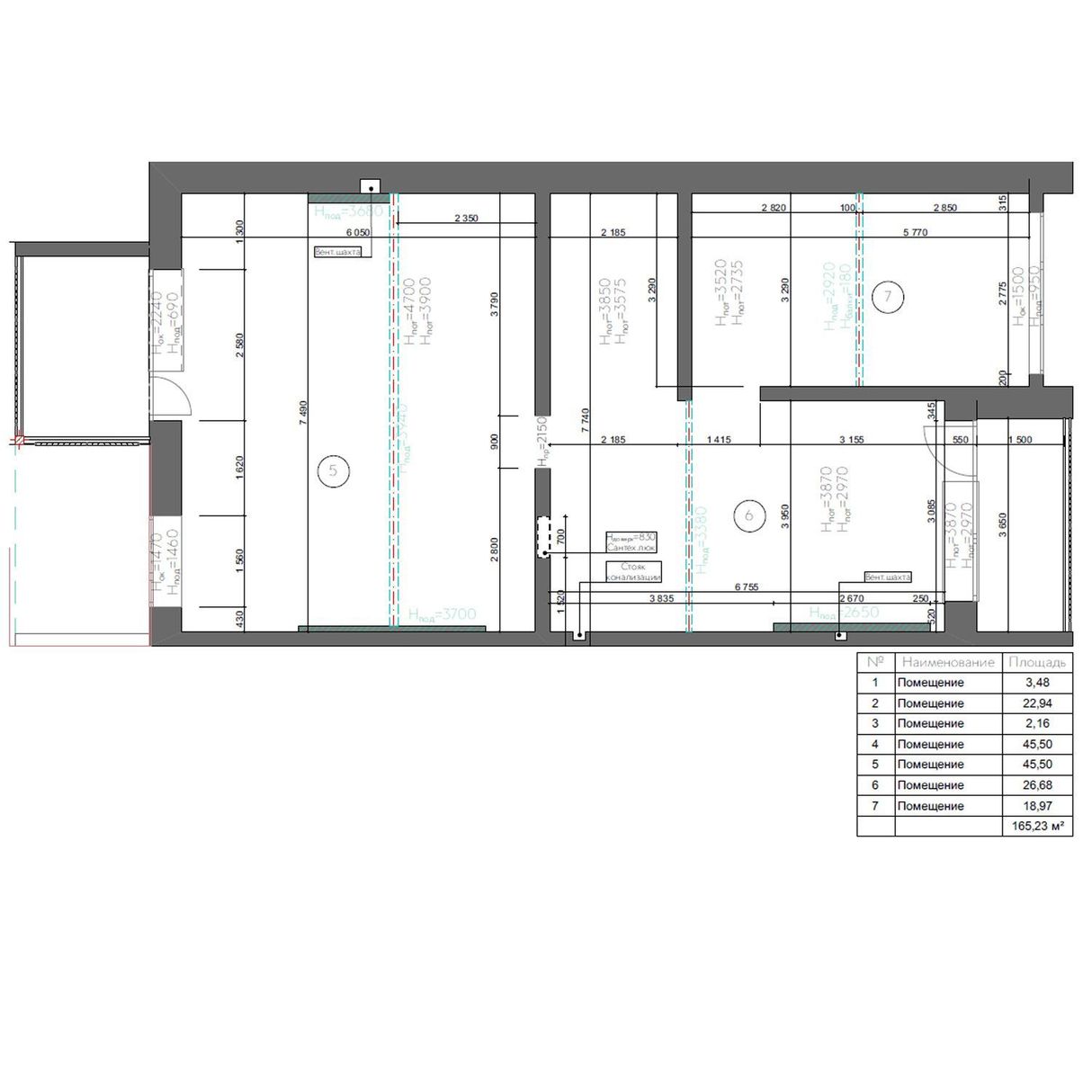
Планировочное решение

Таунхаус в Подмосковье с четырьмя спальнями для семьи с двумя детьми школьного возраста. Яркие акценты, обои с броскими рисунками, паркетная доска с укладкой елочкой, сочетание стилей кантри и неоклассика.
Изображение
Изображение
Изображение
Изображение

Прихожая

Изображение
Изображение
Изображение
Изображение
Изображение
Изображение
Изображение
Изображение
Изображение
Изображение
Изображение

Кухня-гостиная

Кухню-гостиную, вопреки сегодняшним тенденциям было решено разделить кирпичной стеной. Чтобы перегородка не казалась слишком массивно, частично ее превратили в барную стойку, через которую будет удобно передавать в гостиную напитки и закуски.
Изображение
Изображение
Изображение
Изображение
Изображение
Изображение
Изображение
Изображение

Душевая

Изображение
Изображение
Изображение
Изображение
Изображение

Коридор, 2 этаж

Изображение
Изображение
Изображение
Изображение

Спальня 1

Яркая, но очень нежная женская спальня с гардеробной и рабочей зоной.
Изображение
Изображение
Изображение
Изображение
Изображение
Изображение
Изображение
Изображение

Спальня 2

Массивные кровать и стол из дерева и минималистичность отделки для мужской спальни.
Изображение
Изображение
Изображение
Изображение
Изображение
Изображение

Детская 1

Детская для девочки-школьницы с антресолью для игр и ночевок с подружками. Лестница совмещена со шкафом , а разные обои на этажах создают разную атмосферу для каждой зоны.
Изображение
Изображение
Изображение
Изображение
Изображение
Изображение
Изображение

Детская 2

Мальчишеская спальня со шведской стенкой и гамаком для компьютерных игр.
Изображение
Изображение
Изображение
Изображение
Изображение
Изображение

Ванная

Изображение
Изображение
Изображение
Изображение
Изображение
Изображение

Постирочная

Изображение
Изображение
Изображение
Посмотреть рабочую документацию
Изображение
© ООО "Инсайт"
+7 (985) 528 3334

м. Ботанический сад
Москва, проезд Серебрякова 14, с.15