Изображение
  • О компании
  • Услуги и цены
  • Проекты
  • О нашей работе
  • Контакты
Обновить интерьер
Обновить интерьер

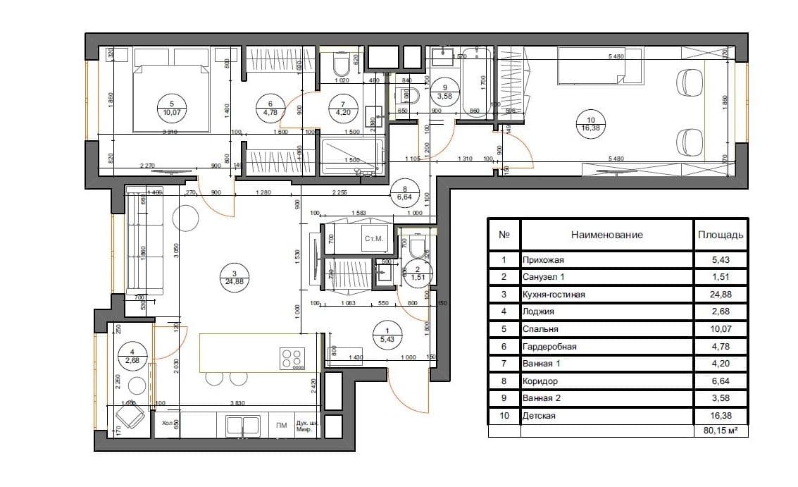
Планировочное решение

Семейная пара с двумя детьми планировала создать для себя минималистичное, но максимально комфортное жилье. В квартире удалось разместить мастер-спальню с гардеробной и просторной душевой, детскую с собственной ванной, просторную кухню-гостиную, гостевой санузел и зоны для хранения.
Изображение
Изображение

Прихожая и коридор

Изображение
Изображение
Изображение
Изображение

Кухня-гостиная

Изображение
Изображение
Изображение
Изображение
Изображение
Изображение

Мастер-спальня

Изображение
Изображение
Изображение
Изображение
Изображение
Изображение

Душевая мастер-спальни

Изображение
Изображение
Изображение
Изображение

Детская

Изображение
Изображение
Изображение
Изображение
Изображение
Изображение

Ванная

Изображение
Изображение
Изображение
Изображение
© ООО "Инсайт"
+7 (985) 528 3334

м. Ботанический сад
Москва, проезд Серебрякова 14, с.15